Floor Plans

  1. Information and Options
  2. 120 Seated
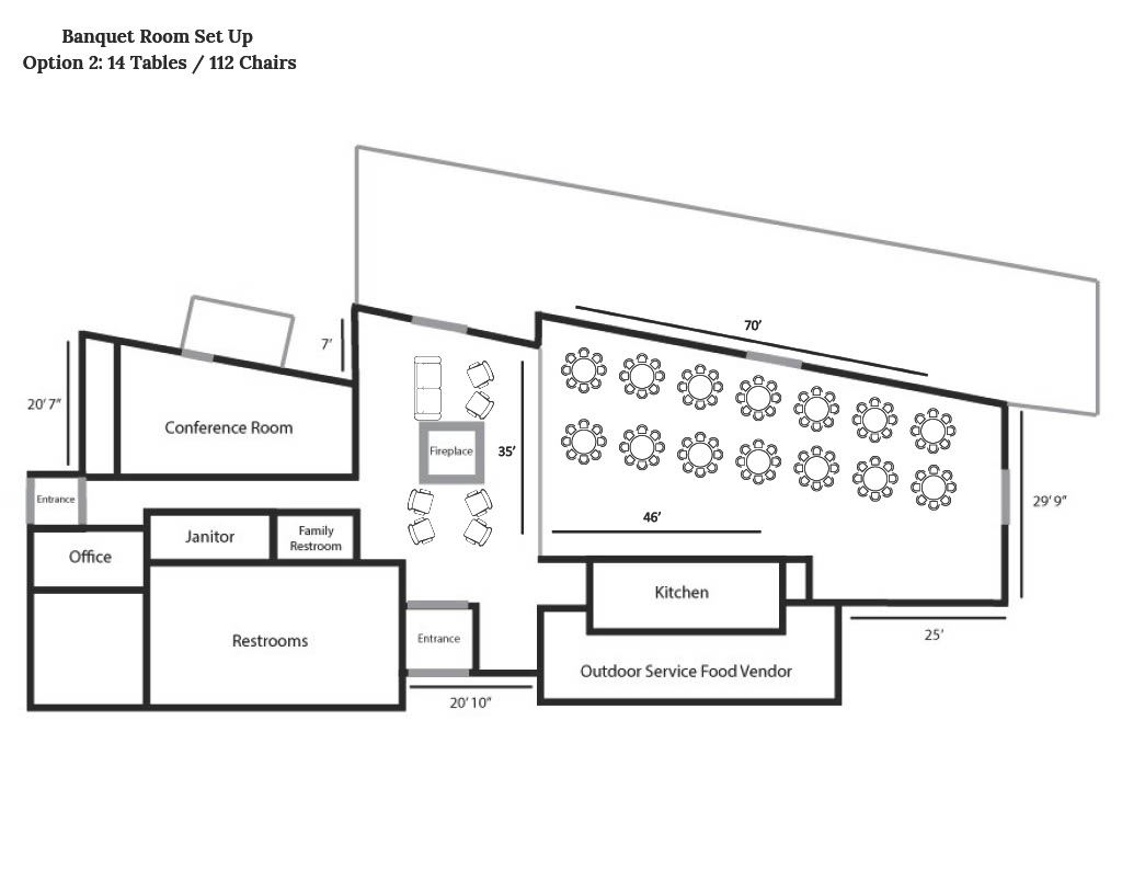
  3. 112 Seated
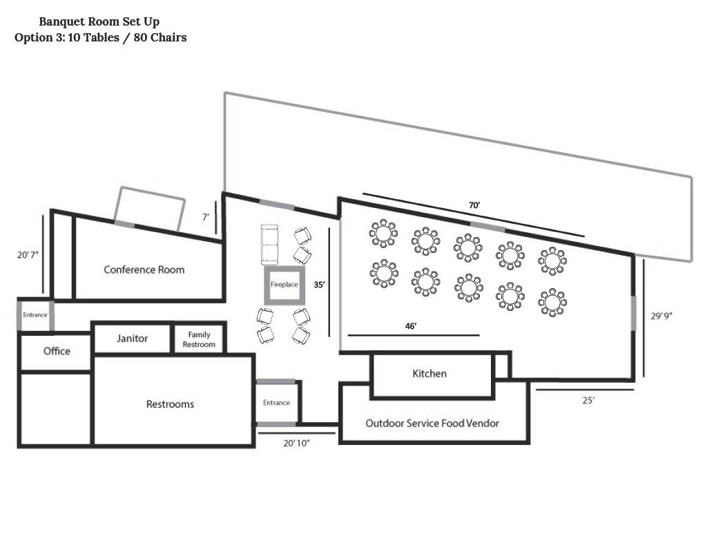
  4. 80 Seated
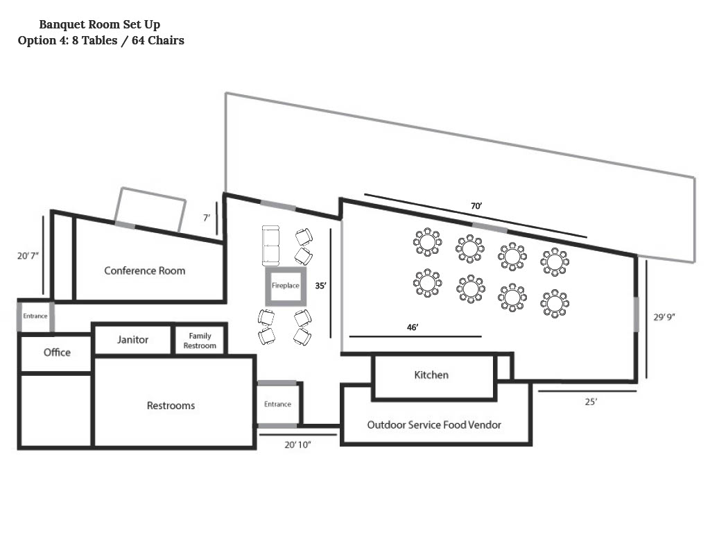
  5. 64 Seated
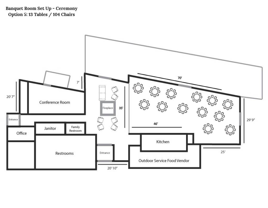
  6. 104 Seated
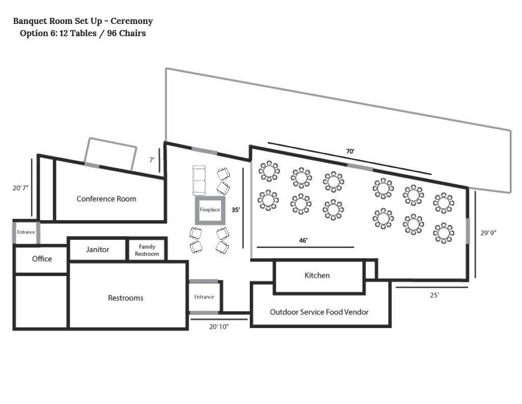
  7. 96 Seated
  8. Up to 120 Customizable

View 2025 floor plans (PDF). The final layout must be finalized 14 days before your event.

Items available at the Mississippi Crossings Event Center:

  • 15 - 60" round tables
  • 120 chairs
  • 6 - high top round cocktail tables
  • 6 - 6' banquet style tables (folding)
  • 6 - 8' banquet style tables (folding)
  • Rolling bar (used by caterer/bartender)

The lobby features a fireplace, couch, six lounge chairs, and two coffee tables.